序赞Ai时刻等待着你的命令!~
与Ai对话形式持续执行相关Ai智能体任务。
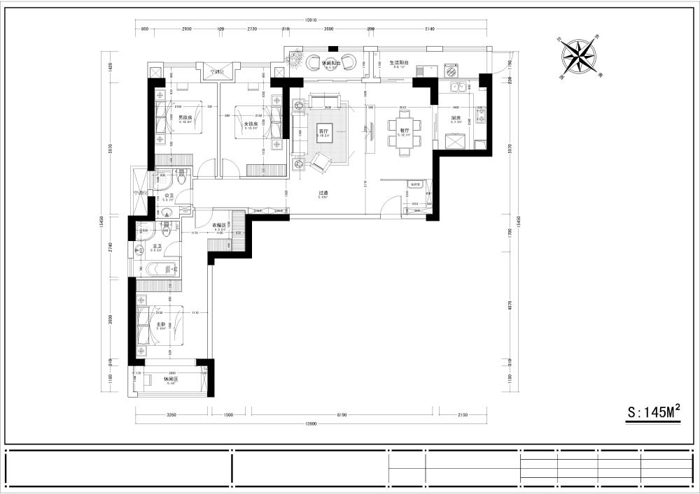
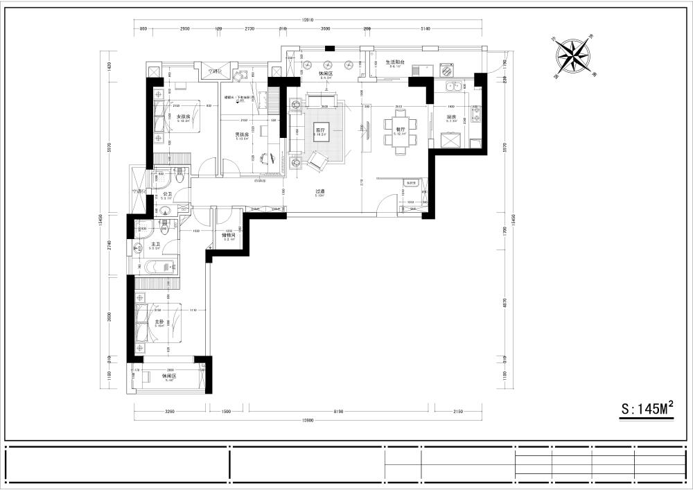
wqg 发表于 2016-8-8 10:16 这样的户型,会有人要?我也服了这业主,座向且不说,这缺角看着就让人不淡定 ...
猛兽 发表于 2016-8-10 08:59 典型的手枪户型
贴数: 8058
贴数: 57641
贴数: 29395
贴数: 41700
贴数: 0
贴数: 316597
贴数: 151480
贴数: 12280
贴数: 76940
贴数: 79259
贴数: 105071
贴数: 36554
贴数: 17298
贴数: 34034
贴数: 9650
贴数: 71039
贴数: 189292
贴数: 6602
贴数: 106134
贴数: 140951
贴数: 84330
贴数: 86287
贴数: 357093