
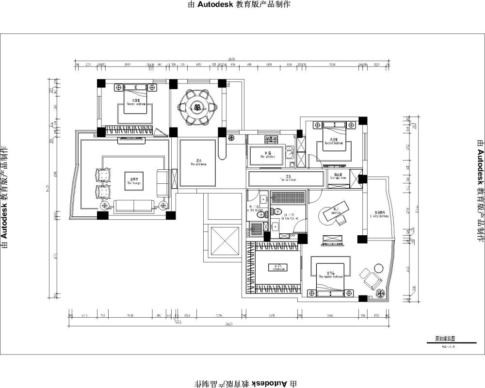
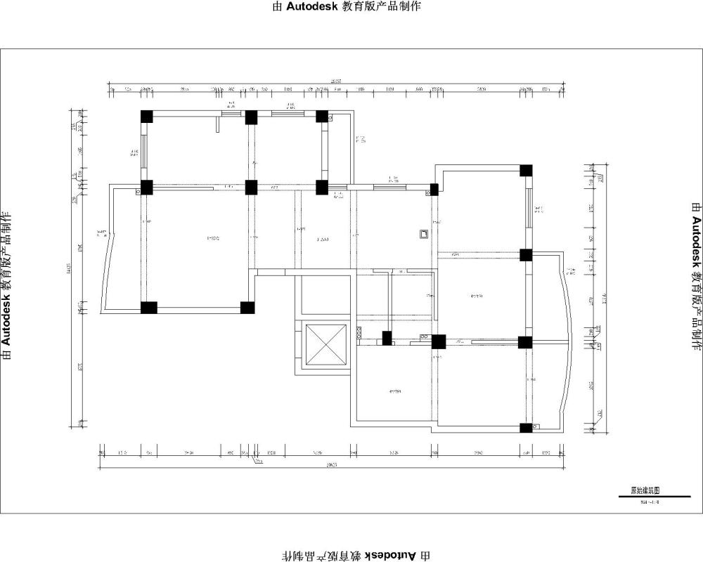
- 平面规划
- >
- 住宅
- >
- 这套户型蛮奇葩的,求求高手们帮我看看
- 2015-07-22
- 2102
- 0
- 0
| |
AI文本分析中……
AI色彩命名中……
序赞Ai时刻等待着你的命令!~
与Ai对话形式持续执行相关Ai智能体任务。
风云雄霸天下2015-7-22 13:44:44
| ||
风云雄霸天下2015-7-22 13:48:37
| ||
月和残梦圆2015-7-22 14:11:21
| ||
风云雄霸天下2015-7-22 15:26:20
| ||
温州黄小贱_黄航2015-7-23 09:26:51
| ||
温州黄小贱_黄航2015-7-23 09:27:12
| ||
温州黄小贱_黄航2015-7-23 09:27:17
| ||
风云雄霸天下2015-7-23 09:46:02
| ||
夜郎遗梦2015-7-24 10:30:36
| ||




