整洁的软装搭配,并不繁多的色彩,装出来整个效果给人非常大气舒适,而简约风格的特色是将设计的元素色彩、照明、原材料简化到最少的程度,但对色彩、材料的质感要求很高13639368837
预览图片
...觉,可以随意装扮也不闲杂乱。本案是朋友介绍,住户为一对年轻夫妻,一个很规整的方盒子造型的户型,入户是直通客厅,我将厨房的储物功能和鞋柜的功能组合,矮墙式的电视背景和餐桌组合,合理利用空间。所用风格简约...
预览图片
...:16.4万。
通过前期跟业主的沟通,了解到住户是一对年轻的小夫妻,他们热爱生活,喜欢旅游,喜欢简约却又独特的家居环境,要与别的家居设计别具一格,这也与我们设计想法不谋而合,在设计的时候,充分考虑空间...
预览图片
...师团队创造了足够充分的发挥余地和空间。同时,客户是一对八零后小夫妻,根据年龄的特征性,在色彩的搭配上,他们对于撞色元素非常具有接受度且很是喜爱。因此在作品中,我们大胆了用了很多撞色的伏笔和金属元素的点...
预览图片
业主是一对年轻的夫妻,与现在大多的年轻人一样追求時尚与潮流,却又注重居室空间的布局、使用功能的完美结合,于是設計师选择了现代极简風格。
极简主义强调功能至上
化繁为简
尽可能地摒弃多余而浮夸的修饰
让一...
预览图片
这是个三代同堂的家,一对年轻的夫妻,一对慈祥的老人,和两个可爱的小男孩与小女孩。由于经济状况未来10年可能不会换房子,所以业主希望每个小孩可以有自己的房间。
预览图片
一对30岁的年轻夫妻 不怎么时尚 要2个小孩房 一个还没出生 一对50多岁的老人(父母)
需要书房 衣帽间 会客厅 餐厅 琴房(三角的) 工人房 储藏间 乒乓球桌
头疼的是地下室不知道怎么弄工人房和卫生间 卫生间排水还可以抽上...
预览图片
业主是一对年轻的夫妻,一开始业主希望将室内定调为LOFT风格,我们在早期也已设计完成,但因建商距离交屋还有一段时日,因此我们在设计定案后又主动提出想加入暗色系与日系的混搭元素,希望空间有其个性之外也能带...
预览图片
...离江边就可能50米。视野非常开阔!
要求:常住人口是一对30多岁年轻夫妻和4岁小女孩,男主人是一公务员,没什么特别要求!女主人是一大学音乐教师,喜欢镜面等比较现代的材质,希望主卧能有个独立宽敞的衣帽间,一个...
预览图片
业主是一对年轻夫妻,这是一个婚房.
业主要求简约或新古典风格
厨房要求封闭不喜欢开放.
现在问题主要是餐厅的位置布局还有冰箱的位置~
请各位大师帮忙
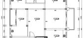
上图
原始户型图
方案一
方案二
预览图片
本帖最后由 dwang_jie 于 2012-5-22 17:04 编辑
这个房子是一对年轻的小夫妻,还没有小孩,想要两个卧室,一个书房。
预览图片
这种规定死了的小户型不知道各位朋友有没有别的做法 {:4:}{:4:}
业主是一对年轻新婚小夫妻 新颖的同时 实用为主
注:下面的墙可以掏空,隔壁是父母的房子,可以借用一点
预览图片
...排布 都不是很满意 门口这块感觉利用不进去。 业主是一对27岁年轻夫妇,过几年要有小孩,客人不多 2夫妻比较喜欢玩游戏 烧菜偶尔烧 。 可以考虑做一个套间 也可以分开 因为是安置房,结构不好
希望能大神帮忙指导...
预览图片
房主是一对年轻夫妻,男主人喜欢北欧风,女主人倾向于传统美式(生活大爆炸场景),家中书比较多,所以书房必须,还有一架钢琴,男主人还有一口槽缸,希望放在家中。
下面是我做的一个初步的方案,只想听缺点,谢谢...
预览图片
预览图片
本案是一套复式。主人是一对年轻的夫妻,有一个9岁女儿,没有内置楼梯。想要解决的问题:①开一个内置楼梯(哪个位置开合适)。②男主人想要一个采光好的安静书房。③公主房。风格定义在现代简约!
预览图片
业主是一对90后年轻小夫妻,有一个小孩,准备造第二个孩子了,父母可能偶尔会过来住,这个方案想来想去总觉得过道好浪费好宽!主卧的衣帽间感觉也有点不舒服。。
预览图片
本帖最后由 wuda123 于 2015-7-19 13:47 编辑
业主是一对年轻的夫妻。经常出国,对小美情有独钟。本案现代美式风格,主要色调以蓝色,白色为基调。客厅沙发,餐桌配以深咖色,简约大气。总之古朴的家具和软装配饰,加重了美...
预览图片
本案位置福州世欧王庄豪楼盘。设计后现代风格。业主是一对年轻的夫妻。爱好旅游,比较时尚。容易接触新鲜事物。在简单的沟通过后。确定了后现代风格。整体空间以黑白灰为主色调。加上局部灰镜的处理。给人感觉时尚,...
预览图片
本帖最后由 466348524 于 2015-9-23 09:45 编辑
业主是一对年轻夫妻,有一小男孩,格局为主人房、小孩房、书房兼次卧。
要求:书房兼次卧做榻榻米(主要想节约空间),最主要的要求是餐厅厨房格局很纠结,不喜欢。
风格定位...
预览图片


















































































